
To begin ideation, a series of quarter scale foamcore models were made. I aimed to design a stool which supports a high "perching" position which actively engages the body. Following this ultimate goal, I wanted to maximize height using the 5-foot board, so I made sure my starting piece of foam was to scale to properly predict the height of the stool. I worked expansively at first to cover a range of ideas, narrowing down with each version. The small models help predict overall structural stability and are a good medium to assess the visual tension of the object.

I decided on a general design which used a long back board to create a good height. To conserve material, I split one full-width board into two: one to act as a foot to maintain a shallow tilt, and the other a rib to tie the foot to the seat and maintain rigidity.

Once the design direction was chosen, a full-scale cardboard model was made to test integrity and proportion. Creating the full-scale model helped reveal some structural weaknesses in the initial design which were not fully evident in the quarter-scale models. Most pressing was potential for seperation between the rib and the long foot piece, which could come apart even with hardware; the goal was to have a stool stable under load even without hardware, the hardware only secondarliy securing the parts together.

Following testing, the rib piece was adjusted to run through the foot piece to increase structural integrity. This way, the rib had more contant surface with the foot piece, in multiuple planes. Also, the hardware would run perpendicualr to the force instead of parrallel, reducing the potenial for the threads ripping out. This new configuration also allowed for slight allowance in the length of the rib as it no longer had to sit flush to the foot.

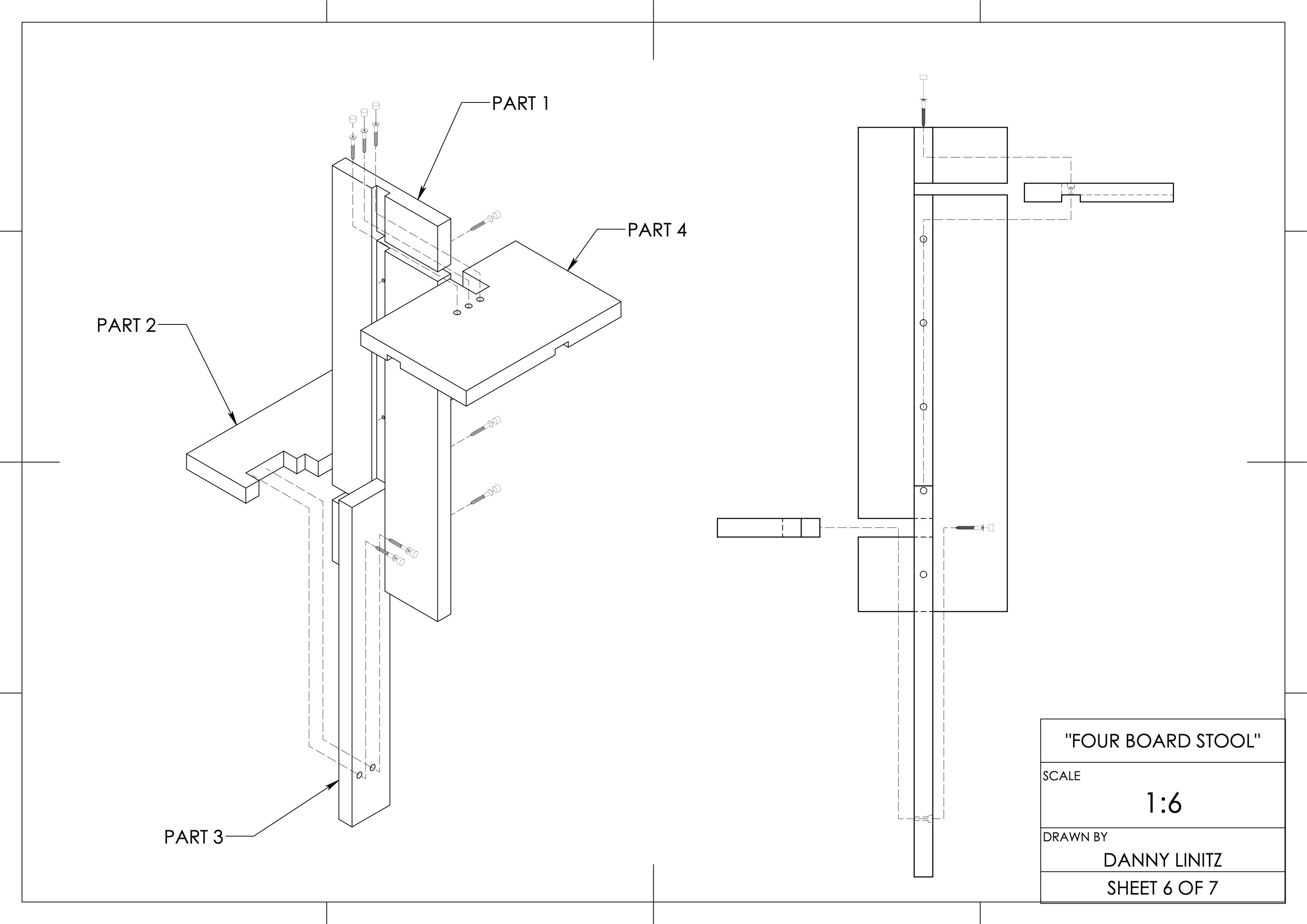
Before moving to fabrication, shop drawings were made to plan out each step in the process. They describe how each tool is used and act as an instruction manual specific to the object being made. This planning step demonstrates to those in charge of the shop that a thought-through plan exists to craft the stool before a tool is used. This approach helps avoid mistakes and safety mishaps while maintaining precision.
